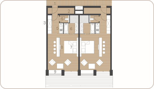
APPARTMENT . 40 qm
Raumprogramm
1 Eingangsbereich
2 Abstellfläche für Sportequipement
3 Schrankwand mit Minbar
4 Toilette
5 Pantry
6 Bad_semitransparente Glaswand
7 Bett mit Rückwand für die Ablage
8 TV
9 Ruheplatz mit Stauraum
